ICA WANCHAI CAMPUS

HONG KONG 2025

The new Wanchai Campus (WCC) is designed to project a dynamic corporate image of the ICA Church, with most of its diverse congregation actively engaged in the market place.

The WCC is strategically situated next to Central, HongKong’s CBD, and amidst many brand-new premium grade offices with direct and convenient connection to the MTR Admiralty Station, where various transports from different areas of Hong Kong converge. The WCC will serve as an ideal venue – a “Vibrant Hub” – for theICA Marketplace Ministry to reach out to the business community in the future.

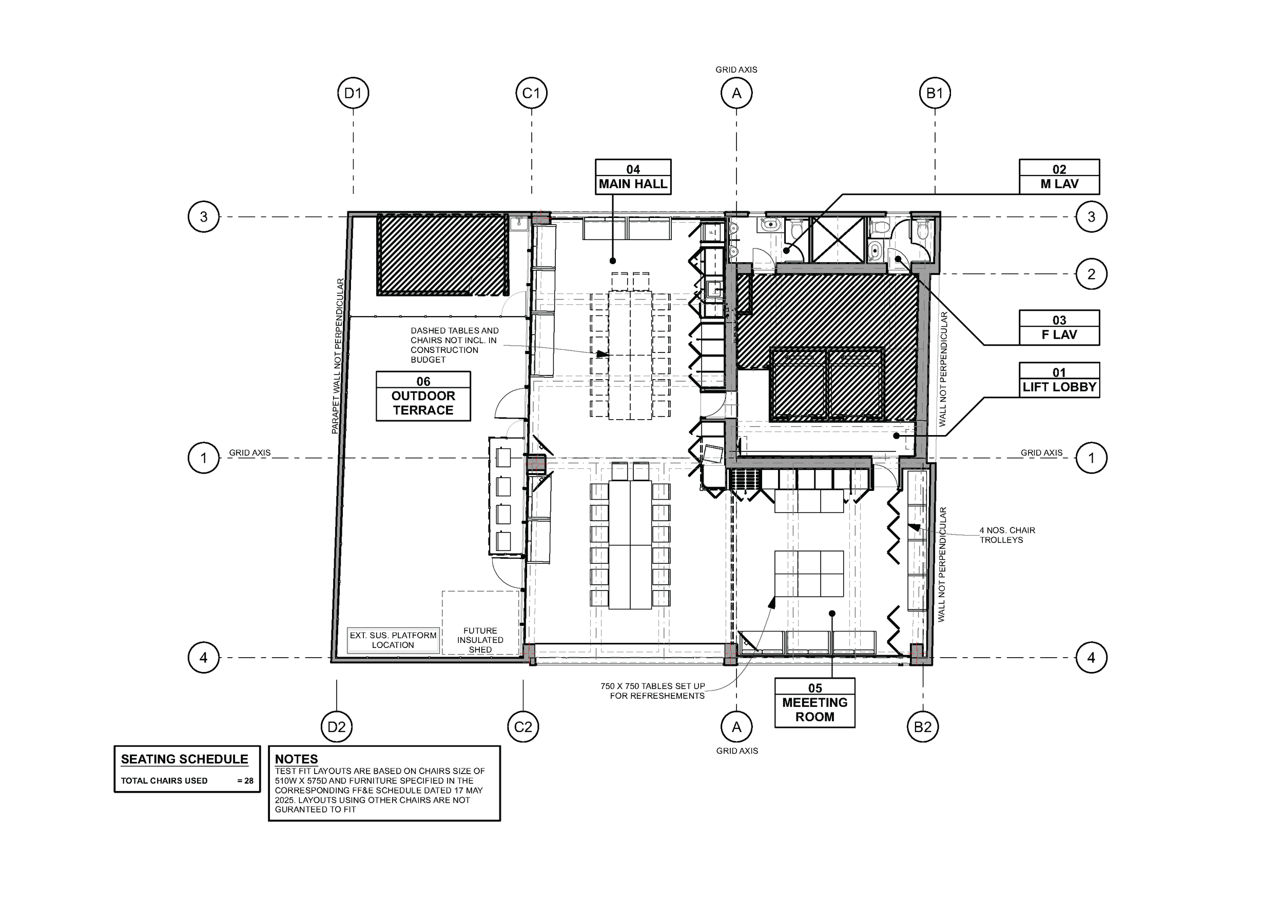
The WCC is designed with the above vision in mind to be a versatile space to serve not only the needs of ChurchServices by different language congregations, but also, offers a professional environment to enable church wide corporate events to take place: Marketplace Ministry events, monthly church prayer meetings, bible teachings, staff or member trainings, inter-church meetings, etc. The thoughtfully planned layout incorporates professional facilities, flexible training arrangements, and modern office amenities that cater to business professionals while simultaneously provides welcoming spaces for community gatherings and services.

SIMPLICITY

Drawing inspiration from traditional Chinese teahouses to maximize natural daylight while minimising outside distractions  filtering through the vertical screen mesh. We emphasis simplicity and spirituality through clean lines and a neutral palette.

MATERIALS

Our material palette emphasises nature and timelessness inspired by the tea house concept. Durability and ease of maintenance guide the selection of materials, such as hard wearing luxury vinyl tile (LVT) flooring and woodgrain laminate for wall paneling.

NEUTRAL PALETTE

Warm timber tones and subtle ICA color highlights create an atmosphere of refinement, providing a calm environment conducive to meaningful spiritual connection and focus.

LIGHTING

The lighting scheme features innovative glowing mesh screens that create layers of ethereal illumination, coupled with semi open ceilings to enhance verticality of the interior. Creating warm lit space during the day or at night.

MINIMAL DECOR

The interior design embraces a minimalist aesthetic, with clean lines and uncluttered spaces that create a sense of serenity.

FUNCTIONAL FURNITURE

The design incorporates versatile furniture pieces that can be easily reconfigured to accommodate different functions and congregation sizes.